Trilocale in vendita

Cassina De' Pecchi, via via roma
€ 375.000
3 locali 3 locali
128 Mq 128 Mq
2 bagni 2 bagni

Trilocale in vendita

Cassina De' Pecchi, via via roma

Descrizione annuncio

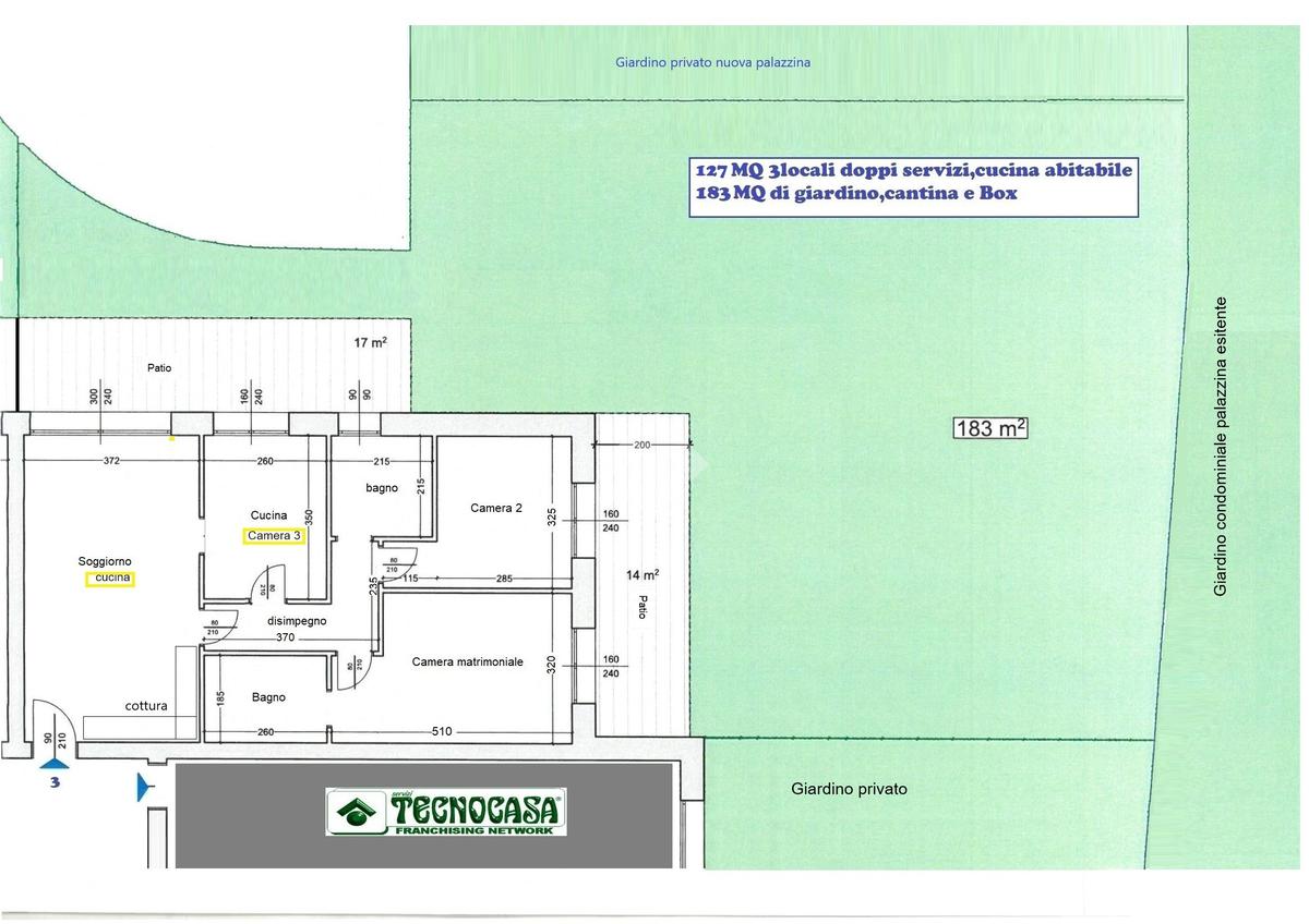
Nel cuore di Cassina de' Pecchi, proponiamo un appartamento di nuova costruzione, situato al piano terra di un elegante complesso residenziale. L'immobile, offre spazi ben distribuiti e moderni. L'ingresso si apre su un ampio soggiorno con accesso diretto al terrazzo, ideale per momenti di relax all'aperto. La cucina è separata e funzionale. La zona notte comprende due camere da letto, entrambe luminose e confortevoli, e due bagni, progettati con finiture di qualità. Un giardino privato circonda l'abitazione, offrendo uno spazio verde esclusivo. L'appartamento è dotato di ascensore e include un box auto. La costru zione e la ristrutturazione, completate nel 2026, garantiscono standard energetici e tecnologici all'avanguardia. Questa soluzione abitativa rappresenta un'opportunità per chi cerca comfort e modernità in un contesto signorile.

Mostra tutto

Nelle vicinanze

Trasporto pubblico Trasporto pubblico
Cassina de' Pecchi
Cassina de' Pecchi
350 m
Bussero
Bussero
1,1 Km
Cassina de' Pecchi M2
Cassina de' Pecchi M2
50 m
Trasporto pubblico
330 m
Approdo
1,8 Km
Ricariche auto elettriche Ricariche auto elettriche
Magazzini Mauri's
630 m
Iperal Cassina De' Pecchi
690 m
CONAD Cernusco sul Naviglio | EnelX
2,5 Km
Scuole Scuole
Scuole
310 m
Scuole Medie
520 m
Istituto Comprensivo Monte Grappa Bussero
1,7 Km
Istituto San Nazaro
2,2 Km
Nuovo Polo Scolastico
2,4 Km
Farmacia Farmacia
Farmacia
490 m
Parafarmacia Ipercoop
1,8 Km
Farmacia Ghiozzi
2,1 Km
Farmakal
2,3 Km
Parafarmacia Conad
2,5 Km
Ospedali Ospedali
Centro Sant'Ambrogio - Fatebenefratelli
1,5 Km
Ospedale Uboldo
2,8 Km
Supermercati Supermercati
UNES
470 m
Eurospin
620 m
Iperal
750 m
inCoop
1,2 Km
Ipercoop
1,8 Km
Negozi Negozi
Panificio Il Mondo Del Pane
80 m
Ferrari
320 m
Big & Small
1,2 Km
Pan per Focaccia
1,2 Km
Original Marines
1,8 Km
Bar Bar
Bar Il Macinino
50 m
Mini Bar
150 m
Bar
200 m
L'angolo del gelato
290 m
Bar Europa
1,4 Km
Ristoranti Ristoranti
Pizzeria Capri
140 m
Pizzeria San Marco
370 m
Al 53
550 m
Pizzeria Flappo
610 m
Porcaloca
1,0 Km
Mostra tutto

Caratteristiche

Rif.:
61159208
Piano:
2 di 2 con ascensore (Piano terra con giardino)
Box:
1
Terrazzi:
1
Camere da letto:
2
Arredamento:
Assente
Mostra tutto
Prezzo Prezzo
€ 375.000
Rata mutuo Rata mutuo
€ 1.780 / mese
Spese annue Spese annue
€ 200
Proponi il tuo prezzoProponi il tuo prezzo

Classe Energetica

A3
A3
A3
A3
A3
A3
A3
A3
A3
EP globale non rinnovabile:
174.56 kW h/m² anno
EP globale rinnovabile:
147.89 kW h/m² anno
EP invernale del fabbricato:
EP estiva del fabbricato:
Anno di costruzione:
2026
Riscaldamento:
Centralizzato
Tipo impianto:
A pavimento
Tipo alimentazione:
Pannelli

Ti interessa visionare l'immobile?

Fissa un appuntamento  Fissa un appuntamento

Richiedi informazioni

Clicca su Leggi per aprire l'informativa
* Questi campi sono obbligatori

Calcola il tuo mutuo

Semplice e senza impegno
Anticipo

( % )
Mutuo

( % )

pochi semplici passi

inserisci i tuoi dati
Questionario completato
Grazie per aver richiesto un appuntamento senza impegno con un nostro Consulente del Credito e Assicurativo.

Hai inserito correttamente tutti i dati necessari e a breve riceverai una e-mail con un link da convalidare per inviare i tuoi dati.
Affiliato
Tecnomed Sas
Via Papa Giovanni XXIII, 7 20060 Cassina De' Pecchi (MI)

Il nostro staff


  • Dario Chiappa
    Affiliato
Via Papa Giovanni XXIII, 7 20060 Cassina De' Pecchi (MI)
Zona: Cassina De Pecchi - S. Agata
Mostra su mappa
Orari: Dal lunedì al venerdì 9,00-12,30 a.m. 14,30-20,00 p.m; Sabato tutto il giorno sino alle 18,00 p.m. Domenica chiuso
Affiliato
Tecnomed Sas
Via Papa Giovanni XXIII, 7 20060 Cassina De' Pecchi (MI)

2026 Tecnocasa Franchising S.p.A. - P. IVA 08365160152 - Via Monte Bianco 60/A 20089 Rozzano (MI). Ogni agenzia ha un proprio titolare ed è autonoma. Privacy policy | Policy utilizzo | Cookie policy